
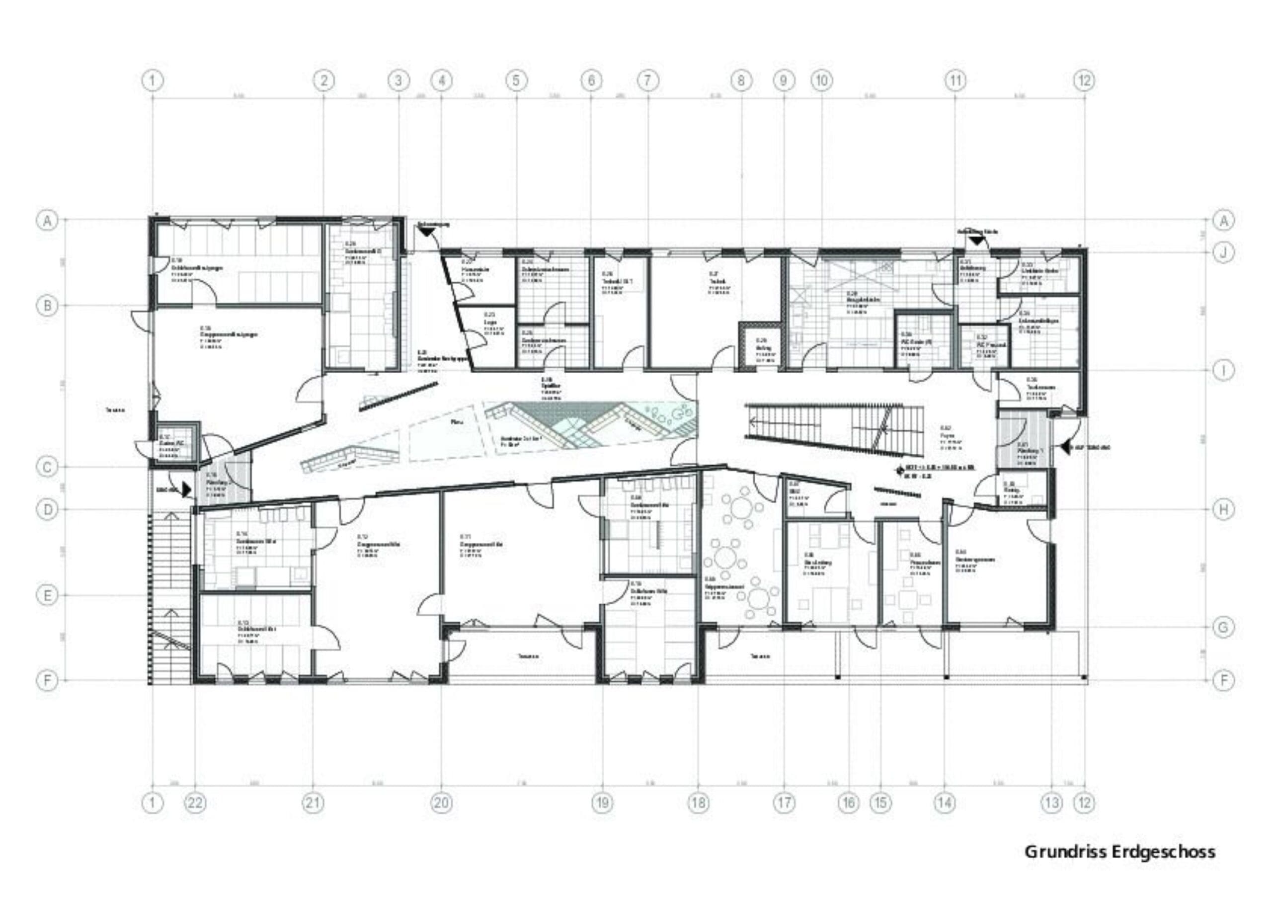
Der Ersatzneubau der Kindertageseinrichtung an der Nöthnitzer Straße 40h in Dresden-Plauen schafft 135 Betreuungsplätze für Krippen- und Kindergartenkinder und ersetzt eine bestehende Container- und Barackenanlage.
Der zweigeschossige Neubau fügt sich in das Umfeld des Dresdner Universitätsviertels ein und unterstützt mit einem zentralen Spielflur das pädagogische Konzept der offenen Arbeit bei barrierefreier Erschließung.
Das Gebäude wird überwiegend in Massivholzbauweise errichtet. Tragende Außen- und Innenwände sowie Decken bestehen aus Brettsperrholz- und Brettschichtholzelementen, ergänzt durch einzelne Stahlbetonbauteile wie Bodenplatte und Aufzugsschacht. Zum Einsatz kommt überwiegend Fichtenholz aus nachhaltig bewirtschafteten, FSC- beziehungsweise PEFC-zertifizierten Wäldern. Die Lieferung der Brettsperrholz- und Brettschichtholzelemente erfolgt durch ZÜBLIN Timber.
Die Tragstruktur basiert auf tragenden Holzscheiben und Brettsperrholzdecken, die die vertikalen und horizontalen Lasten abtragen. Die Aussteifung erfolgt über die Geschossdecken in Kombination mit ausgewählten Stahlbetonbauteilen, während Unterzüge aus Brettschichtholz größere Spannweiten ermöglichen.
Bauherrschaft: Landeshauptstadt Dresden Eigenbetrieb Kindertageseinrichtungen
Architektur: NHzwo – projects Noack . Hartmann . Helbig PartGmbB
Statik: Ingenieurgesellschaft Hochbau GbR
Brandschutzplaner: Ullrich-Brandschutz
Haustechnik: FWU Ingenieurbüro GmbH
Nutzungsfläche (NUF): 1212 m²
Fertigstellung: 2024
Fotos: NHzwo-projects